BKEC hân hạnh được chủ đầu tư giao kiểm định chất lượng, kiểm tra khối lượng công trình
Công trình: Nhà máy công ty TNHH CN Phú Thuận Toàn
Danh sách các hạng mục chủ đầu tư tin tưởng giao cho BKEC :
Hạng mục: Nhà xưởng
Diện tich: 4380 m2



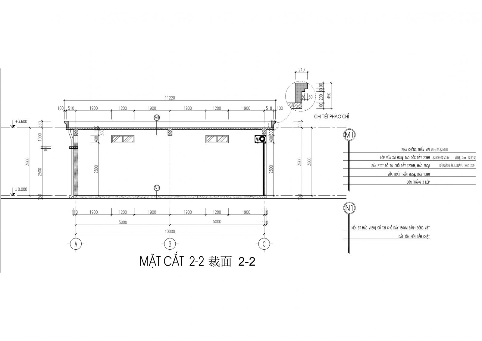
Công trình phụ trợ:
Trạm biến áp
.png)
Bể xử lí nước thải

Bể nước ngầm
.png)
Dự toán khối lượng công trình:
Qúy khách có nhu cầu về kiểm định, lập dự toán, thẩm tra dự toán công trình, xin vui lòng để lại liên hệ hoặc liên hệ trực tiếp với Hotline số 0964.06.99.44 để được nhân viên hỗ trợ nhanh nhất.
CÔNG TY CỔ PHẦN XÂY DỰNG BÁCH KHOA VỚI 12 NĂM KINH NGHIỆM TRONG CÁC LĨNH VỰC VỀ XÂY DỰNG - KIỂM ĐỊNH - THIẾT KẾ - THI CÔNG CHÚNG TÔI KHẲNG ĐỊNH ĐEM ĐẾN CHO KHÁCH HÀNG SỰ HÀI LÒNG VỀ CHẤT LƯỢNG CŨNG NHƯ DỊCH VỤ CHĂM SÓC KHÁCH HÀNG TẠI BKEC
Xin chân thành cảm ơn!