KIỂM ĐỊNH CHẤT LƯỢNG CÔNG TRÌNH TRƯỜNG MẦM NON
Hạng mục: TRƯỜNG MẦM NON
Công trình: KIỂM ĐỊNH PHỤC VỤ CÔNG TÁC CHUYỂN ĐỔI CÔNG NĂNG SỬ DỤNG TỪ NHÀ Ở THÀNH TRƯỜNG HỌC
Địa điểm: 32 ĐƯỜNG AN PHÚ, PHƯỜNG AN PHÚ, TP. THỦ ĐỨC, TP. HCM
Đơn vị thực hiện: CÔNG TY CỔ PHẦN KỸ THUẬT XÂY DỰNG BÁCH KHOA
.png)
Chủ Đầu Tư muốn kiểm định để kiểm tra lại chất lượng khối nhà hiện hữu và khối xây mới. Chính vì vậy, để đảm bảo vận hành sử dụng sau này được đảm bảo an toàn thì rất cần thiết được kiểm tra độc lập bởi đơn vị khảo sát, đánh giá hiện trạng có năng lực và uy tín nhằm giúp Chủ Đầu Tư và các đơn vị liên quan có thông tin để đưa ra phương án xử lý phù hợp, đảm bảo chất lượng của công trình trong quá trình vận hành sử dụng.
BKEC hân hạnh được làm đối tác của Chủ đầu tư, thực hiện công tác kiểm định và đưa ra phương án xử lý.
- Tên công trình: Trường Mầm Non
- Địa điểm: 32 Đường An Phú, Phường An Phú, TP. Thủ Đức, TP. HCM.
- Loại và cấp công trình: Trường học
- Quy mô:
+ Khu biệt thự hiện hữu:
Thư viện: Dài 6.05 m; Rộng 5.20 m
Nhà bếp: Dài 4.40 m; Rộng 4.30 m
Nhà ăn: Dài 15.17 m và 11.59 m; Rộng 9.00 m và 11.15 m
Phòng khách: Dài 4.25 m; Rộng 4.15 m
Phòng y tế: Dài 2.40 m; Rộng 2.10 m
Phong hiệu trưởng: Dài 3.85 m; Rộng 2.78 m
Phòng học 1,2: Dài 11.80 m; Rộng 5.92 m
+ Khu mới xây:
Khu mới xây 1: Dài 35.74 m; Rộng 10.00 m
Khu mới xây 2: Dài 15.10 m; Rộng 10.00 m
- Sơ bộ kết cấu: Công trình được xây dựng dưới dạng tòa nhà với hệ kết cấu cột dầm sàn bằng bê tông cốt thép.
.png)
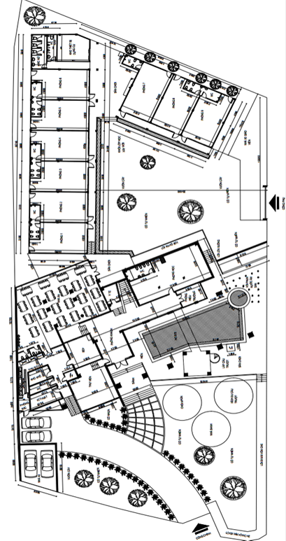
Hình ảnh mặt bằng tổng thể công trình
.png)
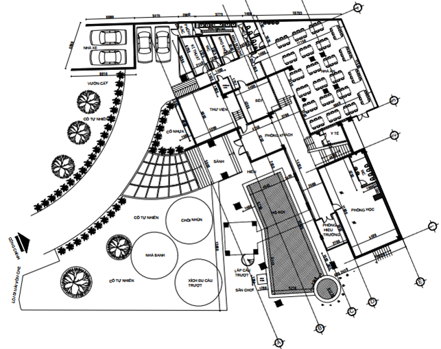
Hình ảnh mặt bằng khu mới xây.
.png)
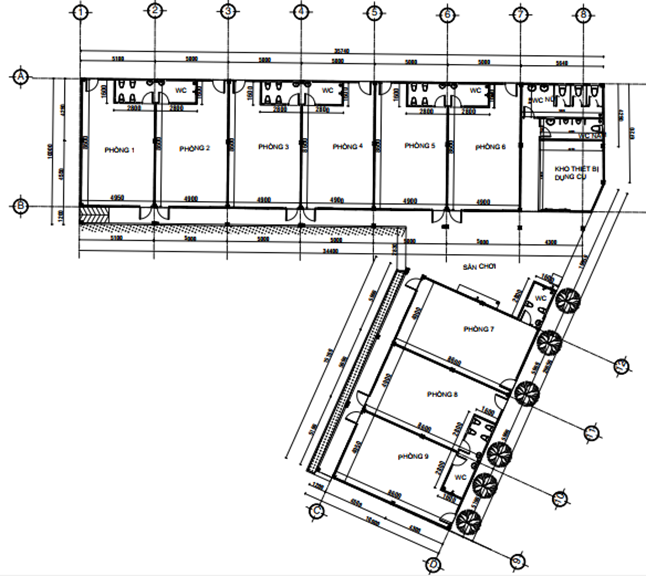
Hình ảnh mặt bằng khu biệt thự hiện hữu.
II. NỘI DUNG THỰC HIỆN:
|
|
Nội dung công việc kiểm định |
Đơn vị |
Khối lượng |
|
|
Kiểm định chất lượng công trình Tòa Nhà 32: 1 trệt, 1 lửng, khu vực sau 1 trệt: 575m2 |
M2 |
575 |
|
|
Khảo sát hiện trạng công trình |
Công trình |
2 |
|
|
Tổng hợp các lỗi công trình |
Công trình |
2 |
|
|
Kiểm tra cường độ bê tông bằng phương pháp bật nẩy hoặc khoan nén mẫu sàn. |
Vị trí |
6 |
|
|
Siêu âm xác định đường kính và số lượng cốt thép trong móng, cột, dầm |
Vị trí |
6 |
|
|
Tính toán, lập báo cáo, kết luận |
Công trình |
2 |
.png)
Mặt ngoài công trình.
Mái vòm che. Thư viện.
.png)
Nhà bếp
.png)
Nhà ăn
.png)
.png)
Phòng khách Phòng y tế
.png)
Phòng hiệu trưởng Phòng học 1,2

Phòng công năng trên lầu
.png)
Mặt ngoài

Các phòng công năng xây dựng thêm
Căn cứ vào kết quả kiểm định tại hiện trường và kết quả tính toán kiểm tra khả năng chịu lực của công trình, Công Ty Cổ Phần Kỹ Thuật Xây Dựng Bách Khoa đưa ra nhận xét và kiến nghị.
CÔNG TY CỔ PHẦN XÂY DỰNG BÁCH KHOA VỚI 12 NĂM KINH NGHIỆM TRONG CÁC LĨNH VỰC VỀ XÂY DỰNG - KIỂM ĐỊNH - THIẾT KẾ - THI CÔNG CHÚNG TÔI KHẲNG ĐỊNH ĐEM ĐẾN CHO KHÁCH HÀNG SỰ HÀI LÒNG VỀ CHẤT LƯỢNG CŨNG NHƯ DỊCH VỤ CHĂM SÓC KHÁCH HÀNG TẠI BKEC
Hotline: 0964.06.99.44 để được nhân viên hỗ trợ nhanh nhất !
Xin chân thành cảm ơn!