KIỂM ĐỊNH NÂNG TẦNG NHÀ Ở TƯ NHÀ Ở TƯ NHÂN
- I. GIỚI THIỆU HIỆN TRẠNG CÔNG TRÌNH – MỤC ĐÍCH KIỂM ĐỊNH:
- Hiện trạng công trình: tầng trệt, tầng 1, tầng 2 và tầng tum.
+ Chiều dài: 13.5 m.
+ Chiều rộng: 6 m.
Địa điểm: Tổ 8, Phường Đồng Quang, TP Thái Nguyên
- Kết cấu chịu lực chính:
+ Hệ móng: Móng cọc.
+ Hệ kết cấu theo phương đứng: hệ cột BTCT.
+ Hệ kết cấu theo phương ngang: hệ dầm BTCT.
+ Hệ kết cấu bản sàn: hệ sàn BTCT.
- Công trình được che chắn bởi các công trình xung quanh. Hai bên công trình là 2 căn nhà, đường giao thông phía trước nhà

Chủ đầu tư muốn kiểm định để kiểm tra lại chất lượng nhà ở để nâng tầng. Chính vì vậy, để đảm bảo quá trình cải tạo và vận hành sử dụng sau này được đảm bảo an toàn thì rất cần thiết được kiểm tra độc lập bởi đơn vị khảo sát, đánh giá hiện trạng có năng lực và uy tín nhằm giúp chủ đầu tư và các đơn vị liên quan có thông tin để đưa ra phương án xử lý phù hợp, đảm bảo chất lượng của công trình trong quá trình vận hành sử dụng.

Sau khi xem xét các văn bản liên quan của công trình cũng như việc kiểm định tại hiện trường, Công Ty Cổ Phần Kỹ Thuật Xây Dựng Bách Khoa (BKEC) có những nhận xét và đánh giá như sau:
Tầng 1: 1 sân để xe, 1 nhà vệ sinh, vị trí cầu thang

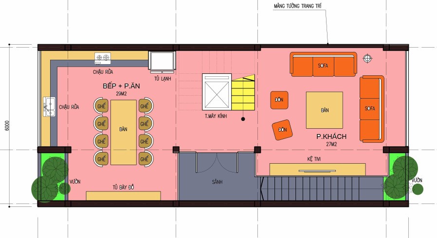
Tầng 2: 1 phòng khách, 1 phòng bếp, 1 thang máy kính, vị trí cầu thang



CÔNG TY CỔ PHẦN XÂY DỰNG BÁCH KHOA VỚI 12 NĂM KINH NGHIỆM TRONG CÁC LĨNH VỰC VỀ XÂY DỰNG - KIỂM ĐỊNH - THIẾT KẾ - THI CÔNG CHÚNG TÔI KHẲNG ĐỊNH ĐEM ĐẾN CHO KHÁCH HÀNG SỰ HÀI LÒNG VỀ CHẤT LƯỢNG CŨNG NHƯ DỊCH VỤ CHĂM SÓC KHÁCH HÀNG TẠI BKEC
Qúy khách có nhu cầu về kiểm định, thẩm tra dự toán tại BKEC xin vui lòng để lại liên hệ hoặc liên hệ trực tiếp với Hotline số 0964.06.99.44 để được nhân viên hỗ trợ nhanh nhất.
Xin chân thành cảm ơn!