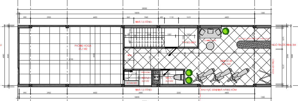
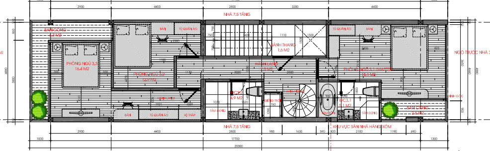
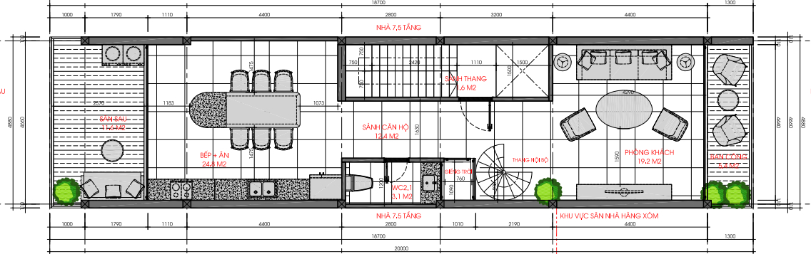
+ Chiều dài: 13.3 m
+ Chiều rộng: 4.48 m
+ Địa điểm: Tổ 15 cụm Tây Hồ (Số 18, ngách 31/46 đường Xuân Diệu), phường Quảng An, quận Tây Hồ, Hà Nội.
Công trình được che chắn bởi các công trình xung quanh. Hai bên công trình là 2 căn nhà 7 tầng, đường giao thông phía trước nhà, sau nhà là đình làng.

Chủ đầu tư muốn kiểm định để kiểm tra lại chất lượng nhà ở để nâng tầng. Chính vì vậy, để đảm bảo quá trình cải tạo và vận hành sử dụng sau này được đảm bảo an toàn thì rất cần thiết được kiểm tra độc lập bởi đơn vị khảo sát, đánh giá hiện trạng có năng lực và uy tín nhằm giúp chủ đầu tư và các đơn vị liên quan có thông tin để đưa ra phương án xử lý phù hợp, đảm bảo chất lượng của công trình trong quá trình vận hành sử dụng.






CÔNG TY CỔ PHẦN XÂY DỰNG BÁCH KHOA VỚI 12 NĂM KINH NGHIỆM TRONG CÁC LĨNH VỰC VỀ XÂY DỰNG - KIỂM ĐỊNH - THIẾT KẾ - THI CÔNG CHÚNG TÔI KHẲNG ĐỊNH ĐEM ĐẾN CHO KHÁCH HÀNG SỰ HÀI LÒNG VỀ CHẤT LƯỢNG CŨNG NHƯ DỊCH VỤ CHĂM SÓC KHÁCH HÀNG TẠI BKEC
Qúy khách có nhu cầu về kiểm định, thẩm tra dự toán tại BKEC xin vui lòng để lại liên hệ hoặc liên hệ trực tiếp với Hotline số 0964.06.99.44 để được nhân viên hỗ trợ nhanh nhất.
Xin chân thành cảm ơn!