Kính chào quý khách!
Công ty Cổ phần Kỹ thuật Xây dựng Bách Khoa - BKEC là nhà thầu chuyên
về Thi công Sàn phẳng lõi rỗng vượt nhịp lớn S-VRO và Gạch không nung lõi xốp G-VRO
Giải pháp kết cấu cho Sàn nhà là một vấn đề vô cùng quan trọng trong kết cấu công trình, nó quyết định đến giá thành, tiến độ xây dựng và chất lượng sử dụng của tòa nhà. Do vậy, cần phải có sự phân tích đúng để lựa chọn ra phương án phù hợp với kết cấu của công trình.
Chúng tôi chuyên về thi công sàn phẳng lõi rỗng vượt nhịp S-VRO đáp ứng được các yêu cầu về chất lượng, giúp tiết kiệm thời gian thi công, dễ dàng linh hoạt trong bố trí không gian kiến trúc, giảm thiểu hoàn toàn ảnh hưởng các khác đến công trình.
Sau đây là một số thông tin về sản phẩm Sàn phẳng lõi rỗng vượt nhịp lớn S-VRO:
Khắc phục nhược điểm bằng công nghệ mới

Hình ảnh thực tế: Sàn dầm truyền thống - Sàn phẳng có nấm - Sàn phẳng S-VRO

* Tối ưu hoá vật liệu, tăng hiệu quả kinh tế:
- Phát huy ưu điểm của sàn phẳng về mỹ quan.
- Trọng lượng giảm, vượt nhịp lớn.
- Cách âm, cách nhiệt tốt.
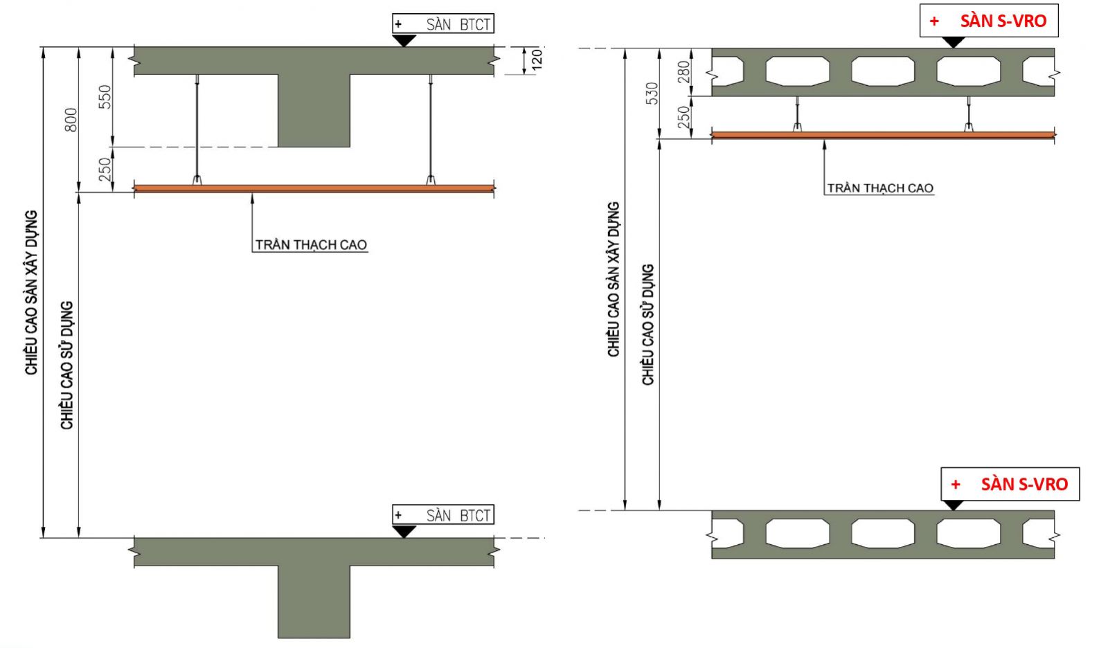
I. ƯU ĐIỂM CỦA S-VRO
1. Tăng chiều cao thông thuỷ
2. Tăng số tầng của công trình
3. Dễ lắp đặt hệ thống cơ điện
4. Thi công nhanh
Tiết kiệm đáng kể việc sử dụng vật liệu, giảm 30% bê tông, 15% hàm lượng cốt thép so với thi công sàn thường truyền thống.
5. Phần rỗng bên trong như lớp đệm không khí nên có khả năng cách âm cách nhiệt, chống rung tốt, loại bỏ lỗi phong thuỷ.
II. TRÌNH TỰ THI CÔNG SÀN S-VRO
III. HỆ KẾT CẤU SÀN S-VRO
IV. CẤU TẠO TẤM PANEL TẠO RỖNG

Tấm panel với hệ khung lưới không gian chế tạo sẵn giúp tiết kiệm thép sàn và giảm thời gian lắp đặt
V. THÔNG SỐ KỸ THUẬT SÀN
1. Hộp xốp EPS chống cháy
Nhiều loại chiều dày hộp xốp tướng ứng với các chiều dày sàn khác nhau
2. So sánh với sàn thường
VI. MỘT SỐ CÔNG TRÌNH SỬ DỤNG SẢN PHẨM SÀN S-VRO:
* Chung cư ECO Cát Tường - Bắc Ninh
Quy mô: 20 tầng - vượt nhịp 7,2m
* Khu du lịch Đỗ Quyên - Quảng Bình
Quy mô: 20 tầng - vượt nhịp 7,2m
* Trung tâm thương mại Trương Định - Hà Nội
Quy mô: 6 tầng - vượt nhịp 13,2m

Thông tin về sản phẩm Gạch không nung lõi xốp G-VRO:
I. CẤU TẠO GẠCH G-VRO
II. ƯU ĐIỂM GẠCH G-VRO

- Thi công nhanh
- Tiết kiệm chi phí
- Giảm tải trọng
- Tăng không gian kiến trúc
Các sản phẩm trên đã được ứng dụng thành công cho rất nhiều công trình cao tầng, chung cư, khách sạn, tòa nhà văn phòng từ các tỉnh thành phía Bắc cho đến các tỉnh thành phía Nam và được đánh giá cao về hiệu quả kinh tế và kỹ thuật.
Nếu quý khách đang cần tư vấn hoặc tìm nhà thầu có nhiều kinh nghiệm làm các công trình lớn, báo giá nhanh, giá hợp lý.
Xin đừng ngần ngại gọi ngay hotline 0964069944 để được tư vấn kỹ thuật và báo giá nhanh nhất !



